
Rangkaian Container Mounted Gantry Cranes
Kren gantungan dipasang kren gantri Struktur dan penggunaan kren gantri kontena rel Kren jenis kren jenis rel terutamanya digunakan untuk memunggah bekas, pengendalian dan penyusunan meter pemindahan kereta api bekas dan meter penyimpanan bekas yang besar. Kren gantri kontena orbit adalah ...
Description/kawalan
Rel bekas rel dipasang kren gantri
Struktur dan penggunaan kren gantri kontena kereta api
Kren kedai bekas jenis keretapi digunakan terutamanya untuk memunggah bekas, mengendalikan dan menyusun meter pemindahan kereta api bekas dan meter penyimpanan bekas yang besar. Kren gantungan kontena orbit terdiri daripada rasuk utama, kaki pintu yang tegar dan fleksibel, troli berjalan, mekanisme angkat, mekanisme kereta, sistem elektrik, teksi operasi dan sebagainya.
Kren gantungan kontena orbit umumnya memerlukan pelepasan besar di arah lebar kaki pintu, jadi bahagian atas kaki pintu dibuka untuk membentuk bentuk U dan bahagian atas kaki pintu disambungkan, dan rangka pemeriksaan troli didirikan. Kren gantungan kontena orbit boleh mengendalikan bekas standard antarabangsa 20 ', 40', 45 '. Pengangkat berat biasanya 36t dan 40.5t.
Menurut laman web ini, penyimpanan dan proses pengangkutan kontena dan memuat dan memunggah kenderaan; jarak ialah 26m, 30m, 35m; cantilever dengan atau tanpa cantilever, cantilever tunggal dan cantilever ganda dan bentuk struktur lain; ketinggian mengangkat mempunyai tiga hingga empat, longgokan dibahagikan dengan lima; kereta atas berputar dan penyebar bawah berputar.
Komponen utama

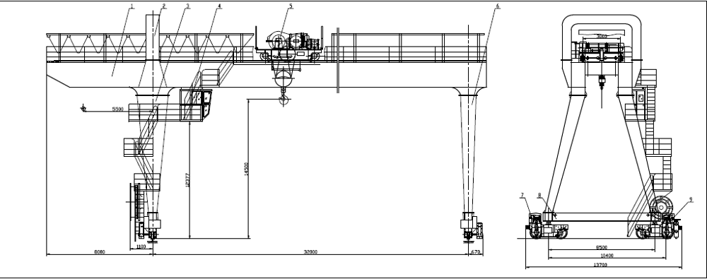
Lukisan untuk rujukan

Cool tags: rel bekas dipasang kren gantungan China, pengeluar, pembekal, disesuaikan, sebut harga, tawaran, harga
Hantar pertanyaan
Anda mungkin juga berminat







